屋顶异造型双曲铝板幕墙施工方案【中东幕墙】
随着幕墙的迅速发展与建筑造型日新月异的奇特变化,双曲铝板得到了广泛应用。但是对其设计加工的复杂性以及安装精度的高标准进行深度分析,为了取得良好的施工效果,为相关工程的施工给大家提供一定的参考
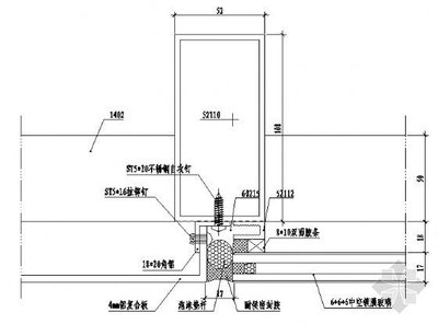
所谓铝板幕墙施工方案,就是采用铝板、彩色涂层铝板等板材经过辊压冷弯成各种波型的铝板,随着我国经济高速发展,铝板幕墙施工方案也从工业建筑进入各地大型的公共建筑,像火车站、机场候机楼、音乐厅、体育场馆、大剧院等.铝板幕墙施工方案应用技术及应用范围不断扩大,应用量也在不断的增加, 其施工方法更为科学和防腐蚀性能更强,建筑屋顶、楼面和墙面采用了受力和连接更为合理的板型,大大提高了铝板幕墙施工方案的应用技术水平.
屋顶异造型双曲铝板幕墙施工方案强度高、自重轻、防水剂抗震性能好、具有良好的蒙皮刚度.减少安装、施工安装方便、缩短施工工期、运输工作量少.铝板幕墙施工方案与混凝土或砌体围护材料相比,耐久性稍微差些,但铝板幕墙施工方案工厂化产品质量高.铝板幕墙施工方案色彩丰富、造型美观新颖、组合灵活多变、装饰性强.铝板幕墙施工方案是符合国民经济可持续发展的,它可回收利用.
本文由深圳中东幕墙官网提供,中东幕墙专注安全、防水美观的幕墙工程-框架式玻璃幕墙-旧楼幕墙改造-钢结构工程,整体工程设计、定制、施工全案服务,让幕墙提升楼宇价值,中东幕墙工程服务热线:版权所有:http://www.zdmq88.com/转载请注明出处!



手机网站入口
直通项目总监咨询
项目总监名片